Carol's House - Click Images for Enlarged View
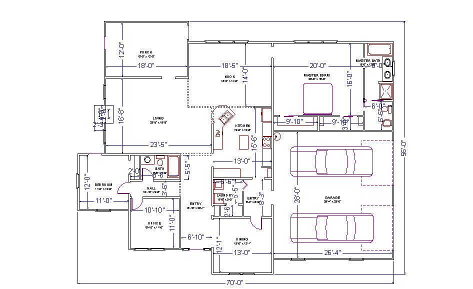
floorplan
raytraced

Carol's House - 3D Model (2002) (This is the link to open the 3D model in the Hypercosm viewer. It will open in a new tab/window.)

Description:

There really isn't anything spectacular about this model. In fact, when I was looking at it recently I thought it was rather primitive and incomplete (I noticed a couple of mistakes). Thing is, I found this file when I was looking thru some of my stuff to post. The file date is 2002. Amazing, considering that is was only a few years ago, how much more complicated it was generating these kind of files back then (at least on a home computer). And to generate a ray-trace, well suffice to say that was typically initiated as I was going to bed. Sometimes it would take hours to create one image.
I'm hard pressed to even remember the details of the project. I vaguely remember it was a remodel job. I was the one who went and did all the measurements of the house. That much I do remember.
Anyway, I'm posting it as is. I'll resist "fixing it up". :)

Technical Note: You will quickly discover this model behaves odd in the 3D viewer. It kinda skews the perspectives. To be honest, I'm not sure yet exactly what is causing it- other than exporting/importing about 5 times to get it to a useable state with these current applications. :P
As I get time, I'll dig a little deeper and see what I can do.

 

 

All images on this site are property of ScottPod.com and may not be used by anyone else.

Home : Contact : Glossary : ezCandlesticks.com (Austin's Other Site)