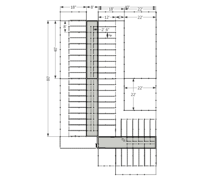
Dog Kennel Concept Design Using 3 ISBUs- Click Images for Enlarged View
kennel using ISBUs
kennel using ISBUs
kennel using ISBUs
kennel using ISBUs
kennel using ISBUs
kennel using ISBUs
kennel using ISBUs
kennel using ISBUs
kennel using ISBUs
kennel using ISBUs

 

Description:
My family owns a dog kennel, so over the years I've played around with many various designs. This particular design is based on using 3 ISBUs.

This model is possibly the most complicated one I have (in terms of rendering), as I built it with several different design options, that can be viewed by turning layers on/off. I also used full sided chain link fence, that has so much geometery, I'll probably never be able to render it fully on my current computer. In it's current form, I can't export it to a 3D model for this page. I'll try to work on it in the near future and get something posted.
I'm also going to hold off on doing a full write-up describing this model until I see exactly what I get posted. Check out the images, and you'll get the main ideas.

 

 

 

All images on this site are property of ScottPod.com and may not be used by anyone else.

Home : Contact : Glossary : ezCandlesticks.com (Austin's Other Site)